Rez-de-ch. avec jardin - vendu - 1090 Jette

Rez-de-ch. avec jardin - à vendre - 1090 Jette
1 1 61 m² PEB : G

Description

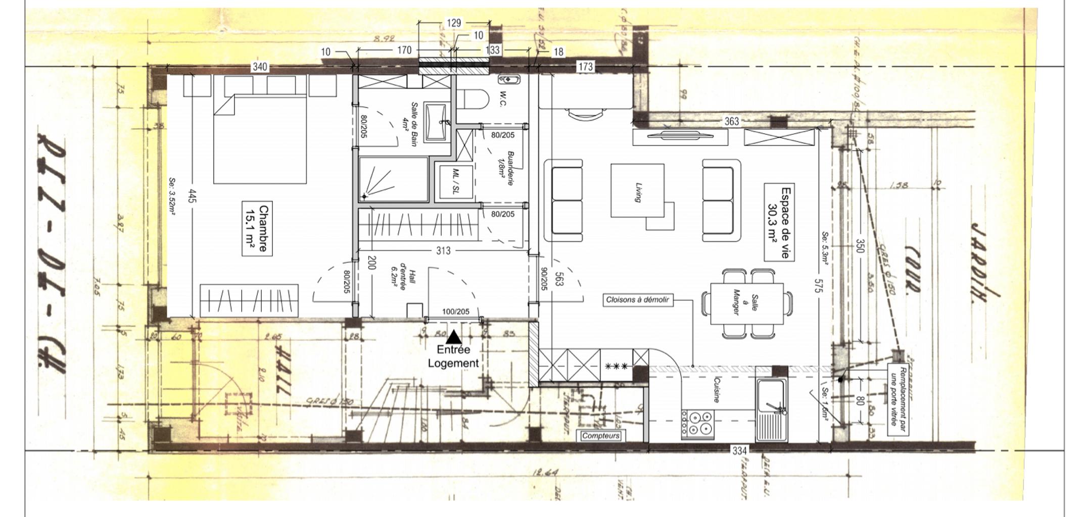
SOUS OPTION !! JETTE - REF : 5244804 - Dans un petit immeuble en béton de 3 unités, nous vous proposons ce beau rez-de-chaussée avec jardin! Actuellement reconnu comme bureau, un permis a été introduit pour en faire un appartement 1 chambre avec jardin. L'appartement se composera selon le permis: d'un hall d'entrée, une belle chambre de 15m2, un lumineux living avec cuisine américaine donnant accès au jardin, une salle de bain, une buanderie et un wc séparé. Détails importants: permis à charge du propriétaire, travaux à charge des acquéreurs (+ou- 40.000€ à prévoir (électricité, cuisine, salle de bain, création des murs, abattre des murs, plafonnage, etc..), permis à respecter, pas de charges dans la copropriété, chauffage central, parlophone, construction béton, compteurs individuels. INFOS et VISITES avec votre agence Perception Immobilière : 0496/70.83.70 et pour plus d'informations rendez-vous sur notre site www.perception-immobiliere.be

Adresse :

Avenue Firmin Lecharlier 61/63 - 1090 Jette

Général

Référence 5244804
Catégorie Rez-de-ch. avec jardin
Nombre de chambres 1
Nombre de salles de bain 1
Jardin Oui
Surface du jardin 50 m²
Garage Non
Terrasse Oui
Surface habitable 61 m²
Disponibilité immédiatement

Bâtiment

Année de construction 1951

Nom, catégorie & situation

Etage 0
Nombre d'étages 3

Equipement de base

Accès handicapés Oui
Ascenseur Non
Double vitrage Oui
Chauffage (type) gaz (chau. centr.)
Type de cuisine non-équipée

En chiffres

Nbre de toilette(s) (nombre) 1
Chambre 1 (surface) 15 m²
Salle de séjour (surface) 31 m²

Raccordements

Égouts Oui
Électricité Oui
Gaz Oui
Câbles téléphoniques Oui
Eau Oui

Équipements techniques

Châssis (type) aluminium

Spécificités terrain

Type d'environnement calme

À proximité

Ecoles Oui
Transports en commun Oui
Centre sportif Oui
Autoroute Oui

Certificats / Attestations

Certificat d'électricité (oui/non) oui, non conforme

Certificats énergétiques

Label PEB (classe) G
PEB E-SPEC (kwh/m²/an) 424
Emission CO2 (émission CO2) 82
Prendre contact pour le bien : 5244804

* Champs obligatoires

Sélection des points d'intérêts

Biens similaires

Préférences pour les cookies

La protection de vos données personnelles est importante pour nous. C’est pourquoi nous détaillons ci-dessous les différents services et fonctionnalités du site qui utilisent des cookies et nous vous laissons décider des cookies que vous souhaitez autoriser ou refuser.

Veuillez cependant noter que si vous bloquez certains types de cookies, cela pourrait impacter votre expérience de navigation sur notre site ainsi que les fonctionnalités disponibles.

Nous utilisons des cookies fonctionnels obligatoires pour assurer le bon fonctionnement du site. Ils sont, par exemple, nécessaires pour retrouver le résultat d’une recherche ou enregistrer le choix de la langue.

Certaines fonctionnalités, comme l’affichage de vidéos ou de cartes géographiques, sont assurées via des composants externes développés par des partenaires comme YouTube ou Google. Certains composants utilisent des cookies qui sont susceptibles de permettre à ces tiers de suivre le comportement des internautes afin, par exemple, de réaliser du ciblage publicitaire. L’activation de ces fonctionnalités et des cookies associés est donc soumis à votre consentement.