Appartement - vendu - 1050 Ixelles

Appartement - à vendre - 1050 Ixelles
1 1 72 m² PEB : G

Description

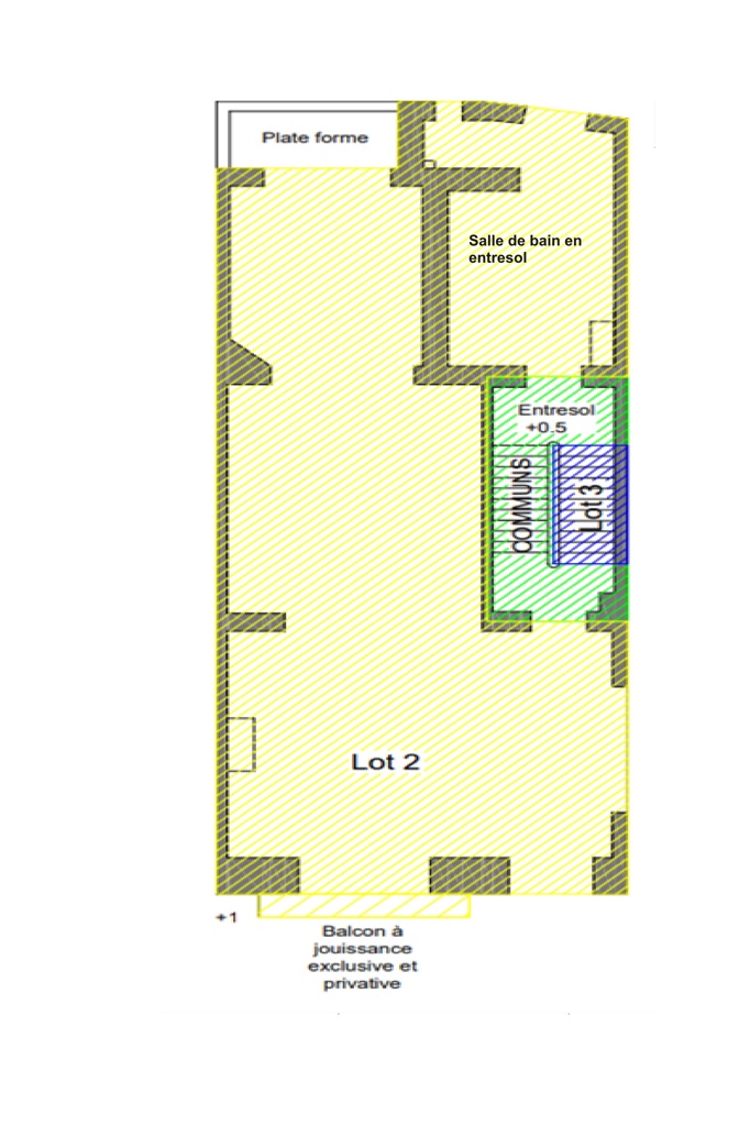
IXELLES - REF: 5570761 - Lumineux appartement une chambre, situé au 1er étage d’un petit immeuble de 3 logements. La configuration de l’appartement est de 3 pièces en enfilade + une pièce en entre étage. Il se compose d’un bel espace de séjour de +- 30 m² (très lumineux), une cuisine ouverte semi équipée, une chambre et une salle de bain (actuellement située en entre étage, à éventuellement relier à l’appartement (voir plan)). L’appartement est également pourvu d’un balcon en façade avant et il y a la possibilité de faire une terrasse en façade arrière moyennant permis (voir plan dans l’annonce). Les compteurs de gaz et d'électricité sont individuels. Aucune charges communes prévues actuellement. Les parties communes de l’immeuble sont en bon état (hauts plafonds, moulures). Pas de cave, pas de garage. Actuellement loué. Ne tardez pas à venir visiter ce bien avec votre agence Perception Immobilière en nous contactant au 0496/70.83.70. et pour plus d'informations rendez-vous sur notre site www.perception-immobiliere.be.

Adresse :

Avenue de la Couronne 298 - 1050 Ixelles

Général

Référence 5570761
Catégorie Appartement
Meublé Non
Nombre de chambres 1
Nombre de salles de bain 1
Terrasse Oui
Surface habitable 72 m²
Surface du terrain 250 m²
Disponibilité en fonct. du locataire

Bâtiment

Année de construction 1924

Nom, catégorie & situation

Etage 1
Nombre d'étages 3

Equipement de base

Accès handicapés Non
Ascenseur Non
Chauffage (type) gaz (chau. centr.)
Type de cuisine amer. semi-équipée

En chiffres

Nbre de toilette(s) (nombre) 1
Chambre 1 (surface) 12 m²
Largeur de façade 5.5
Salle de séjour (surface) 32 m²
Surface balcony 1 1.2 m²

Charges & Rendement

Sous régime TVA Non
Loué Oui

Raccordements

Égouts Oui
Électricité Oui
Gaz Oui
Eau Oui

Équipements techniques

Châssis (type) bois ou pvc

Spécificités terrain

Type d'environnement central

Caractéristiques Principales

Surface de terrasse 1 1.2 m²

À proximité

Magasins Oui
Ecoles Oui
Transports en commun Oui
Centre sportif Oui

Certificats / Attestations

Certificat d'électricité (oui/non) oui, non conforme

Certificats énergétiques

Label PEB (classe) G
PEB E-SPEC (kwh/m²/an) 373
Emission CO2 (émission CO2) 75
PEB code unique 20230928-0000656776-01-2
PEB valide jusqu'au (datetime) 29/09/2033
Date du PEB (datetime) 28/09/2023
Prendre contact pour le bien : 5570761

* Champs obligatoires

Sélection des points d'intérêts

Biens similaires

Préférences pour les cookies

La protection de vos données personnelles est importante pour nous. C’est pourquoi nous détaillons ci-dessous les différents services et fonctionnalités du site qui utilisent des cookies et nous vous laissons décider des cookies que vous souhaitez autoriser ou refuser.

Veuillez cependant noter que si vous bloquez certains types de cookies, cela pourrait impacter votre expérience de navigation sur notre site ainsi que les fonctionnalités disponibles.

Nous utilisons des cookies fonctionnels obligatoires pour assurer le bon fonctionnement du site. Ils sont, par exemple, nécessaires pour retrouver le résultat d’une recherche ou enregistrer le choix de la langue.

Certaines fonctionnalités, comme l’affichage de vidéos ou de cartes géographiques, sont assurées via des composants externes développés par des partenaires comme YouTube ou Google. Certains composants utilisent des cookies qui sont susceptibles de permettre à ces tiers de suivre le comportement des internautes afin, par exemple, de réaliser du ciblage publicitaire. L’activation de ces fonctionnalités et des cookies associés est donc soumis à votre consentement.