Duplex - sold - 1030 Schaerbeek

Duplex - for sale - 1030 Schaerbeek
2 1 75 m² PEB : G

Description

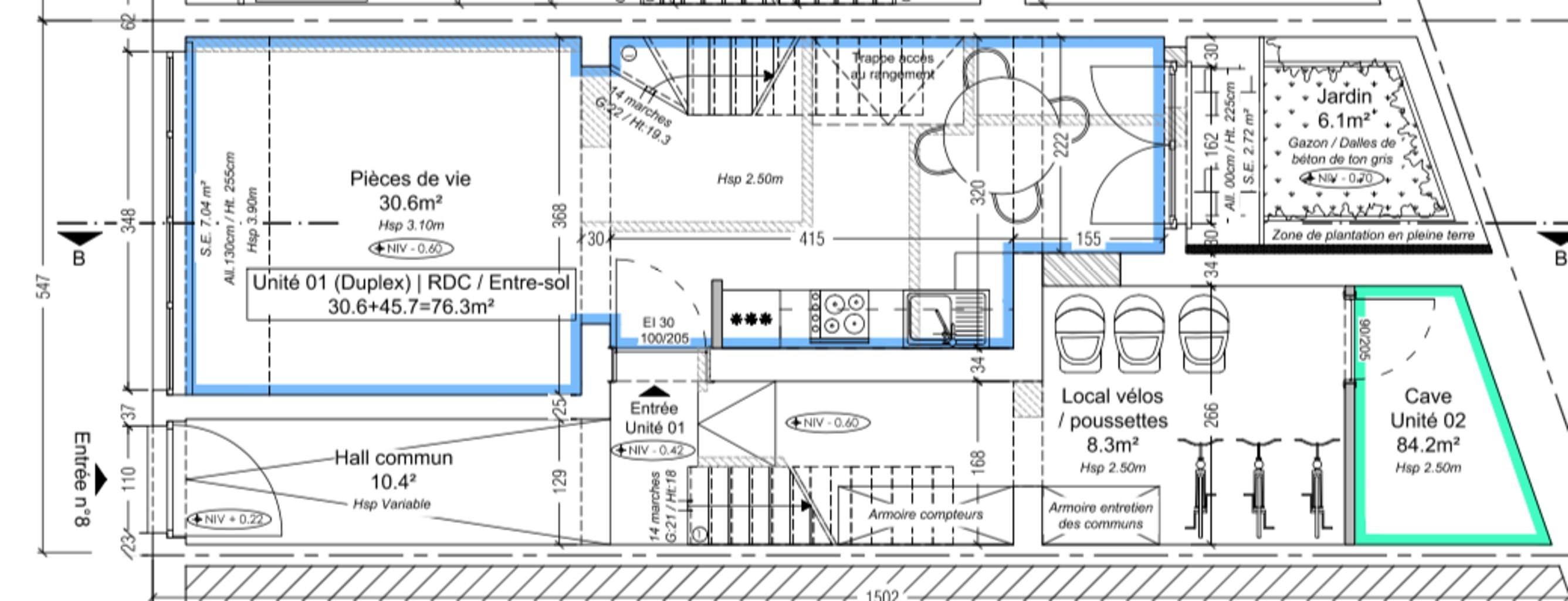
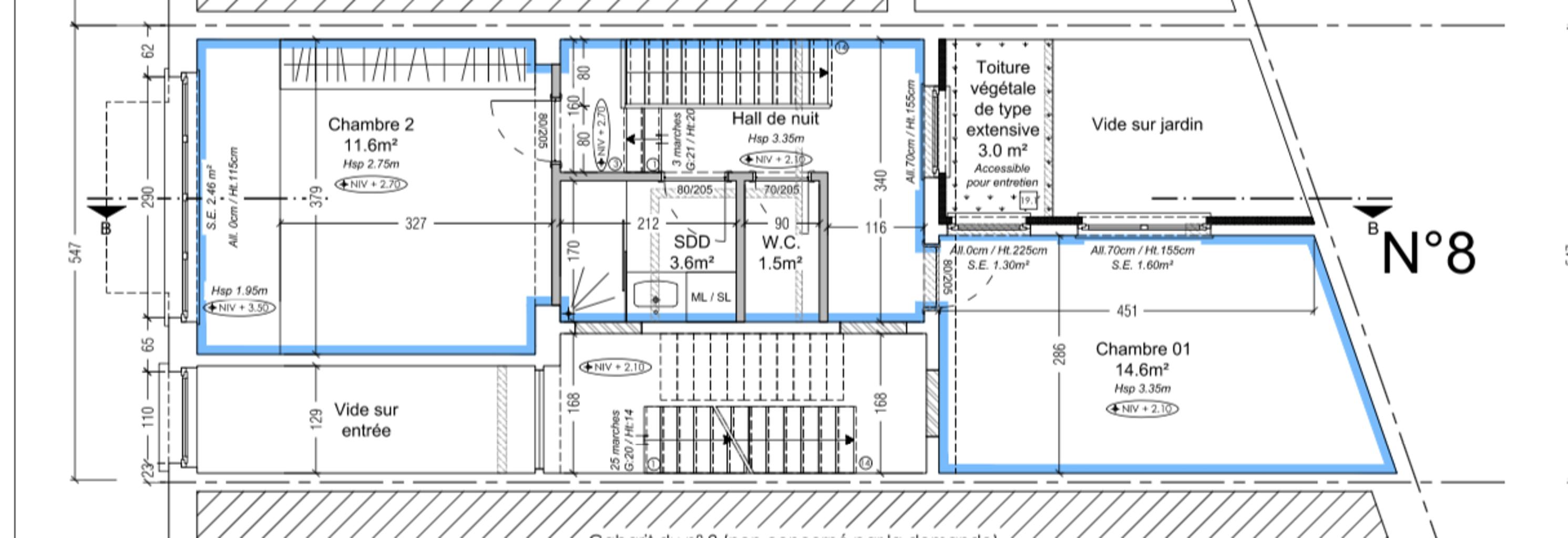
SCHAERBEEK - REF : 5208373 - In a residential area close to all amenities, we offer this beautiful duplex in a small condominium without charges. The ground floor consists of a spacious living room with open plan kitchen and a courtyard. On the mezzanine floor there are two bedrooms, a night hall, a bathroom and a separate toilet. Important details: currently divided into 4 small units, permit to be respected, LOTS of work to be done, no charges in the building, new division, intercom, projected situation of the flat in the photos, permit available on request. More info? Contact your perception Immobilière agency on 0496/70.83.70. or visit our website www.perception-immobiliere.be for more information.

Address :

Grande Rue au Bois 8 - 1030 Schaerbeek

General

Reference 5208373
Category Duplex
Number of bedrooms 2
Number of bathrooms 1
Garage No
Terrace Yes
Parking No
Habitable surface 75 m²
Availability tbd with the tenant

Building

Construction year 1938

Name, category & location

Floor 0
Number of floors 3

Basic Equipment

Access for people with handicap Yes
Elevator No
Type of heating gas
Type of kitchen US semi fitted

General Figures

Number of toilets 1
Room 1 (surface) 17 m²
Room 2 (surface) 11 m²
Living room (surface) 31 m²

Connections

Sewage Yes
Electricity Yes
Gas Yes
Phone cables Yes
Water Yes

Ground details

Type of environment quiet

Main features

Terrace 1 (surf) (surface) 6 m²

Next To

Nearby schools Yes
Nearby sport center Yes

Certificates

Yes/no of electricity certificate yes, not conform

Energy Certificates

Energy certif. class G
Energy consumption (kwh/m²/y) 511
CO2 emission 99
Contact for estate : 5208373

* Mandatory fields

Selection of points of interest

Similar properties

Cookies preferences

The protection of your personal data is important to us. This is why we detail below the different services and features of the site that use cookies and let you decide which cookies you want to allow or refuse.

Please note, however, that if you block certain types of cookies, this could impact your browsing experience on our site as well as the available features.

We use mandatory functional cookies to ensure the proper functioning of the site. They are, for example, necessary to find the result of a search or to save the choice of language.

Certain functions, such as the display of videos or maps, are provided via external components developed by partners such as YouTube or Google. Certain components use cookies which are likely to allow these third parties to follow the behavior of Internet users in order, for example, to carry out advertising targeting. The activation of these features and the associated cookies is therefore subject to your consent.